Windleaves Road, Castle Bromwich

Sold Subject to Contract Offers over, £425,000

4 2 1

Approach

Via a tarmaced driveway with ample off road parking.

Porch

Double glazed door to front, double glazed window to side and spot lights to ceiling.

Hallway

Stairs to first floor accommodation, storage cupboard, underfloor heating and two wall light points.

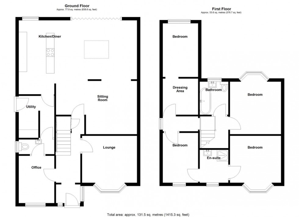
Lounge (3.76m max into bay x 3.25m max into recess)

Double glazed bay window to front, underfloor heating and ceiling light point.

Office/Playroom

Double glazed window to front, underfloor heating and spotlights to ceiling.

Utility

Double glazed door to rear garden, space for white goods, cupboard concealing wall mounted central heating boiler and ceiling light point.

Downstairs W/C

Double glazed window to side, low level W/C, wash and basin with vanity below, underfloor heating and spot lights to ceiling.

Kitchen/Diner/Family Room (7.54m x 6.83m)

Double glazed bifold door and window to rear, sky lantern, wall base and drawer units, island with induction hob with storage below, sink with drainer and mixer tap, breakfast bar, integrated oven, microwave oven, dishwasher and fridge freezer and four ceiling light points.

Landing

Loft access with loft ladder, partially boarded loft and ceiling light point.

Bedroom One (3.76m max into bay x 3.12m)

Double glazed bay window to front, radiator and ceiling light point.

Bedroom Two (4.04m max into bay x 3.12m)

Double glazed bay window to rear, radiator and ceiling light point.

Bedroom Three (5.54m x 2.06m)

Double glazed window to rear, radiator and spot lights to ceiling.

Bedroom Four (3.07m x 2.06m)

Double glazed window to front, radiator and spot lights to ceiling.

Family Bathroom

Double glazed window to rear, low level W/C, hand wash basin, freestanding bath with hand shower over and spot lights to ceiling

Jack and Jill Ensuite

Double glazed window to front, shower enclosure, hand wash basin with storage below, radiator and spot lights to ceiling.

Rear Garden

Mainly laid to lawn, paved patio area, gated side access to front and enclosed to neighbouring boundaries.

Further Information

We endeavour to make our sales particulars accurate and reliable, however they do not constitute or form part of an offer or any contract and none is to be relied upon as statements of representation or fact. Any services, systems and appliances listed in this specification have not been tested by Chambers Estate & Letting Agents and we make no guarantee as to their operating ability or efficiency. All measurements have been taken as a guide only to prospective buyers and may not be correct. Potential buyers are advised to re-check measurements and test any appliances. A buyer should ensure that a legal representative confirms all the matters relating to this title including boundaries and any other important matters.

Money Laundering Regulations:intending purchasers will be required to provide proof of identification at offer stage, a sale cannot be agreed without this.

Council Tax Band - C
EPC Rating - C

  • Semi Detached Property
  • Four Bedrooms
  • Lounge
  • Kitchen/Diner/Family Room
  • Utility Room
  • Downstairs W/C
  • Family Bathroom
  • Jack & Jill Ensuite
  • Rear Garden
  • Off Road Parking
Floorplan for Windleaves Road, Castle Bromwich
EPC Graph for Windleaves Road, Castle Bromwich
Similar Properties

Book a valuation

Find out how much your property is worth