Kingsleigh Drive, Castle Bromwich, Birmingham

For Sale Offers over, £435,000

4 2 1

Approach

Via Driveway with off road parking

Hallway

Double glazed door to front, stairs to first floor accommodation, radiator and spot lights to ceiling

Lounge (5.72m max into bay x 3.20m)

Double glazed bay window to front, media wall, radiator and spot lights to ceiling.

Kitchen/Diner/Family Room (7.67m x 7.95m)

Double glazed bifold doors to rear, four double glazed windows to side, 2 lanterns, wall base and drawer units, island, integrated full length fridge and freezer, dishwasher, washing machine, oven and microwave oven, flour ring induction hob, sink with drainer and mixer tap, underfloor heating in the extension, radiator and spot lights to ceiling.

Utility (2.03m x 1.96m min)

Double glazed window to side, wall mounted central heating boiler and ceiling light point.

Space for Downstairs W/C

Double glazed window to front, plumbing for W/C

Landing

Loft access with loft ladder, storage cupboard and ceiling light point.

Bedroom One (3.20m x 3.20m)

Double glazed window to front, space for potential ensuite, radiator and ceiling light point.

Bedroom Two (4.42m x 3.23m)

Double glazed window to rear, radiator and ceiling light point.

Bedroom Three (4.34m x 3.38m)

Double glazed window to rear, radiator and ceiling light point.

Bedroom Four (4.37m x 2.21m)

Two double glazed windows to front, radiator and ceiling light point.

Bathroom

Double glazed window to side, Low level W/C and hand wash basin in vanity unit, double shower enclosure, freestanding bath, heated towel rail and spot lights to ceiling

Rear Garden

Mainly laid to lawn, patio area, gated access to the front and enclosed to neighbouring boundaries.

Garage

Up and over door and power points.

Further Information

We endeavour to make our sales particulars accurate and reliable, however they do not constitute or form part of an offer or any contract and none is to be relied upon as statements of representation or fact. Any services, systems and appliances listed in this specification have not been tested by Chambers Estate & Letting Agents and we make no guarantee as to their operating ability or efficiency. All measurements have been taken as a guide only to prospective buyers and may not be correct. Potential buyers are advised to re-check measurements and test any appliances. A buyer should ensure that a legal representative confirms all the matters relating to this title including boundaries and any other important matters.

Money Laundering Regulations:intending purchasers will be required to provide proof of identification at offer stage, a sale cannot be agreed without this.

Council Tax Band - E
EPC Rating - B

  • Detached Property
  • Four Bedrooms
  • Lounge
  • Kitchen/Diner/Family Room
  • Utility
  • Family Bathroom
  • Space for Downstairs W/C
  • Space for Potential Ensuite
  • Garage
  • Off Road Parking
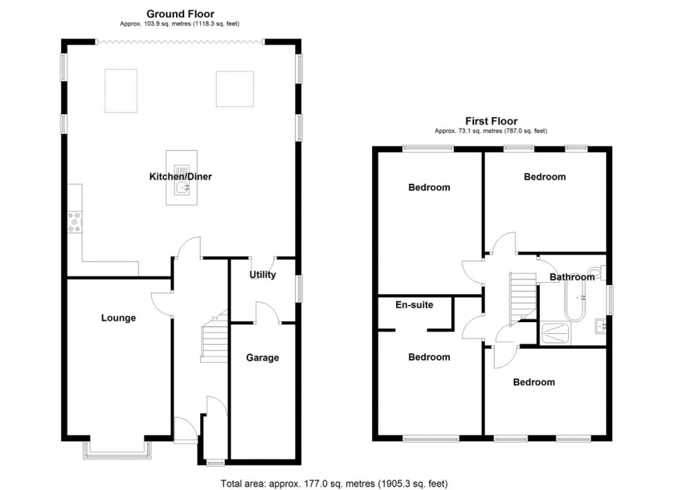
Floorplan for Kingsleigh Drive, Castle Bromwich, Birmingham
EPC Graph for Kingsleigh Drive, Castle Bromwich, Birmingham
Similar Properties

Book a valuation

Find out how much your property is worth